| توافر الحالة: | |
|---|---|
| الكمية: | |
CU80-300.
BMS
| رقم. | المؤشرات الرئيسية | لفة تشكيل المعلمات مطحنة | ||
| 1. | DEcioiler. | دليل / هيدروليكي للخيارات | تشكيل محطات | 15 خطوة |
| 2. | مادة القاطع | CR12MOV. | قاعدة | H450. |
| 3. | سمك المواد | 1.5-3.0mm. | سمك الجدار الجانب | Q235 T30MM. |
| 4. | المحرك الهيدروليكي | 7.5 كيلوواط | مهاوي | 45 #، 80mm، φ75 |
| 5. | مواد التطبيق | ورقة مجلفنة | قوة المحرك الرئيسية | 22 كيلوواط |
| 6. | قوة العائد | 345-550MPA. | البراغي المسمار | الصف 8.8. |
| 7. | تشكيل السرعة | 25 متر / دقيقة (بدون اللكم وسرعة القطع) | ربط قضيب | Ф22 المجلفن |
| 8. | حجم فعال | كما تصميم العملاء | أسطوانة | GCR15 (= EN31 الصلب)، الدقة تشكيله، شاق الكروم المغلفة |
| 9. | نظام التحكم | نظام التحكم PLC. | وضع المعالجة | مخارط التصنيع باستخدام الحاسب الآلي، سماع العلاج، من الصعب الكروم المغلفة، مع سمك 0.04 مم |
| 10. | اختبار المواد | سوف توفر BMS حجم مواد التغذية لشراء ذلك أسبوعين قبل اختبار الجهاز | ||
تدفق العمل
Decoiler → دليل دليل التغذية → جهاز اللكم → لفة تشكيل مطحنة → نظام PLC هيدروليكي → جهاز هيدروليكي بعد قطع
خروج الرف
عرض مكونات الجهاز

المثقف لفة تشكيل ميل

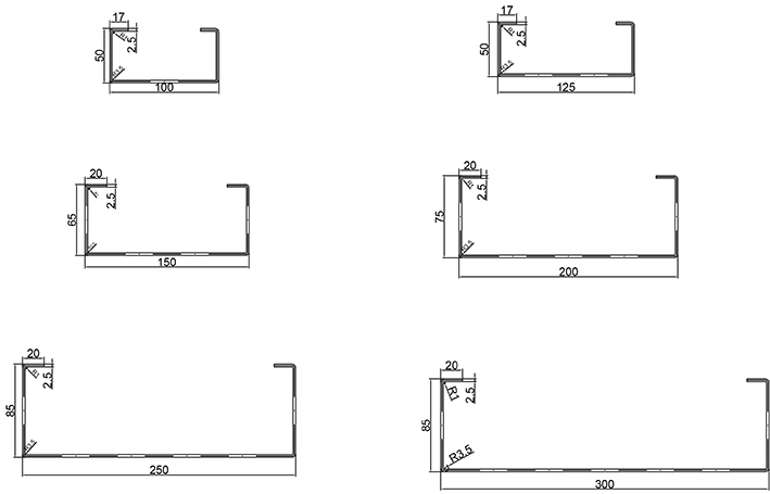
جهاز دليل التغذية حالة طلب المنتج.
آلة المنتج المنتجة

| رقم. | المؤشرات الرئيسية | لفة تشكيل المعلمات مطحنة | ||
| 1. | DEcioiler. | دليل / هيدروليكي للخيارات | تشكيل محطات | 15 خطوة |
| 2. | مادة القاطع | CR12MOV. | قاعدة | H450. |
| 3. | سمك المواد | 1.5-3.0mm. | سمك الجدار الجانب | Q235 T30MM. |
| 4. | المحرك الهيدروليكي | 7.5 كيلوواط | مهاوي | 45 #، 80mm، φ75 |
| 5. | مواد التطبيق | ورقة مجلفنة | قوة المحرك الرئيسية | 22 كيلوواط |
| 6. | قوة العائد | 345-550MPA. | البراغي المسمار | الصف 8.8. |
| 7. | تشكيل السرعة | 25 متر / دقيقة (بدون اللكم وسرعة القطع) | ربط قضيب | Ф22 المجلفن |
| 8. | حجم فعال | كما تصميم العملاء | أسطوانة | GCR15 (= EN31 الصلب)، الدقة تشكيله، شاق الكروم المغلفة |
| 9. | نظام التحكم | نظام التحكم PLC. | وضع المعالجة | مخارط التصنيع باستخدام الحاسب الآلي، سماع العلاج، من الصعب الكروم المغلفة، مع سمك 0.04 مم |
| 10. | اختبار المواد | سوف توفر BMS حجم مواد التغذية لشراء ذلك أسبوعين قبل اختبار الجهاز | ||
تدفق العمل
Decoiler → دليل دليل التغذية → جهاز اللكم → لفة تشكيل مطحنة → نظام PLC هيدروليكي → جهاز هيدروليكي بعد قطع
خروج الرف
عرض مكونات الجهاز

المثقف لفة تشكيل ميل

جهاز دليل التغذية حالة طلب المنتج.
آلة المنتج المنتجة
