| توافر الحالة: | |
|---|---|
| الكمية: | |
BMS
تخصيصof
الطريق السريع ث شعاع لفة تشكيل آلة
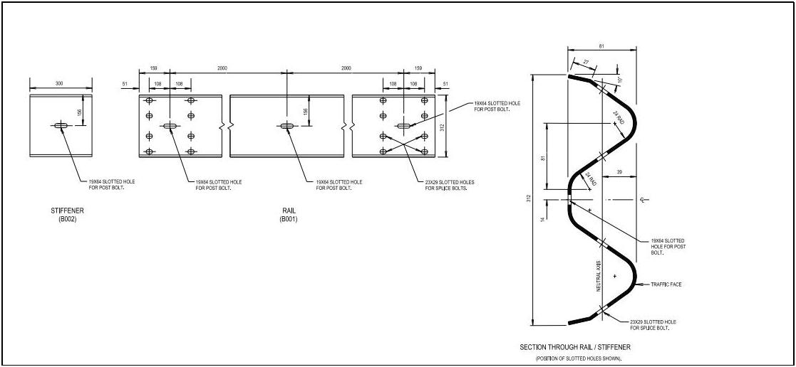
الملف الشخصي:
النوع 1.
النوع 2
مادة
العرض الفعال: 312/502/506mm
سمك المواد: 2.5-3.81mm
المادة المطبقة: الصلب المجلفن، لفائف الصلب المدرفلة الساخنة
مع قوة العائد 345-550MPA
سمك التفتيش: 2.67 / 3.42 / 3.43mm
العمل متابعة
6 طن decoiler الهيدروليكية → جهاز التسوية → جهاز اللكم الهيدروليكي → جهاز التغذية → نظام الماكينة الرئيسية → قطع هيدروليكية بعد قطع → خروج الرف
ثقوب اللكم: (على النحو التالي)
النوع 1:19x64 و 23x.29؛نوع2:19x64 و 23x29.
مجموع الحاجة 2 قوالب اللكم
مكونات الجهاز
1)6 طنفك التشفير الهيدروليكي: مجموعة واحدة
2)جهاز التغذية والتسوية
مع دليل التغذية وجهاز التسوية
حتى ثلاثة أسفل أربعة تماما سبعة مهاوي الجهاز
إطار الجسم المصنوع منH450 نوع الصلببواسطةلحام؛ الجانبسمك الحائط:Q235 T30MM.مهاوي تصنيعها من45 # الصلب، قطر =φ120mm.، نغمة مطلي بالكروم الصلب المغلفة، الدقة تشكيله
3) ثقب اللكمجهاز(مع أربعة قوالب ثقب اللكم)
المحرك الهيدروليكي:37kw.، نطاق الضغط الهيدروليكي:0-25MPA (250BAR)
أداة التثقيب والقطعمواد:قالبالصلب CR12MOV (= D2 الصلب، مع مليون مرة اللكم / القطع الحياة)، المعالجة الحرارية إلى درجة حرارة HRC58-62
2 الاسطواناتالثقبالنظام ،مجموعتحتاج أربعة قوالب اللكم 19x64 و 23x29 و 20x65 و 24 × 30
4) الجهاز الرئيسي
إطار الجسم المصنوع منH450 نوع الصلبعن طريق اللحام
بكرات تصنيعها منCR12.صلب، CNC.مخارط، مهاوي معالجة الحرارة قطر =Ф95.، الدقة تشكيله
محرك التروس حملة (بكرات العلوي والسفلي مع الطاقة)
هيكل نوع العمودالتصميم(الزهر النصب التذكاري القوس، سمك: 55mm)صندوق التروس القيادة، حول19 خطوةلتشكيل
المحرك الرئيسي =45KW،تكرارسرعة التحكم سرعة المحرك Redcucer:Kسلسلة
كتلة انزلاق:150 * 150mm
كل البرغي مسامير مع الصف 8.8(مصانع رخيصة تستخدم انخفاض درجة 4.8)لضمان الإصلاح هيكل الجهاز بإحكام وحياة طويلة خلال آلة الزمن الطويل تشغيل
حقيقية سرعة تشكيل12-16m / دقيقة
مع المياه الباردةجهاز(للحصول على أفضل المنتجات)
19 جير Boxs محرك، 38 نقل مهاوي (حتىوأسفل العمود)
نوع العمود الصورةtructureالتصميم(الحديد الزهر قوس تذكاري، سمك: 55MM)
5) قطع المشاركة الهيدروليكيةجهاز(مجموع الحاجة قوالب اثنين من كتر)
آخر لخفض، ووقف لالقطع، ثلاثةقطع نوع من قطع تصميم شفرة، لا المسح محرك هيدروليكي:37KW، مع جهاز الضرب شارك محطة هيدروليكية
قطع الضغط:0-25Mpa (250bar)قطعأداة المواد:Cr12MoV(= SKD11 مع ما لا يقل عن مليون مرة من حياة قطاعات)، المعالجة الحرارية لHRC58-62 درجة
يتم توفير الطاقة عن طريق قطعمحطة هيدروليكية المستقلة
النظام الهيدروليكيمع فلتر الزيت للنفطالترشيح لضمان تعميم النفط نظيفة و إطالة عمر النظام الهيدروليكي(انظر الصورة أدناه)
\
6) نظام التحكم PLC
مدخلات الإنتاجالبيانات(دفعة الإنتاج، وأجهزة الكمبيوتر، وطول، الخ.) على شاشة تعمل باللمس، ويمكن الانتهاء من إنتاجتلقائيا.
جنبا إلى جنب مع: العاكس، التشفير، الخ
قطع لطول التسامح≤ ± 1مم
السيطرة على الجهد24 فولت
7) حامل الخروج:غير مدعومة، واحدوحدة،معبكرات على ذلك لسهولة الحركة
8) المنتج النهائي
تخصيصof
الطريق السريع ث شعاع لفة تشكيل آلة
الملف الشخصي:
النوع 1.
النوع 2
مادة
العرض الفعال: 312/502/506mm
سمك المواد: 2.5-3.81mm
المادة المطبقة: الصلب المجلفن، لفائف الصلب المدرفلة الساخنة
مع قوة العائد 345-550MPA
سمك التفتيش: 2.67 / 3.42 / 3.43mm
العمل متابعة
6 طن decoiler الهيدروليكية → جهاز التسوية → جهاز اللكم الهيدروليكي → جهاز التغذية → نظام الماكينة الرئيسية → قطع هيدروليكية بعد قطع → خروج الرف
ثقوب اللكم: (على النحو التالي)
النوع 1:19x64 و 23x.29؛نوع2:19x64 و 23x29.
مجموع الحاجة 2 قوالب اللكم
مكونات الجهاز
1)6 طنفك التشفير الهيدروليكي: مجموعة واحدة
2)جهاز التغذية والتسوية
مع دليل التغذية وجهاز التسوية
حتى ثلاثة أسفل أربعة تماما سبعة مهاوي الجهاز
إطار الجسم المصنوع منH450 نوع الصلببواسطةلحام؛ الجانبسمك الحائط:Q235 T30MM.مهاوي تصنيعها من45 # الصلب، قطر =φ120mm.، نغمة مطلي بالكروم الصلب المغلفة، الدقة تشكيله
3) ثقب اللكمجهاز(مع أربعة قوالب ثقب اللكم)
المحرك الهيدروليكي:37kw.، نطاق الضغط الهيدروليكي:0-25MPA (250BAR)
أداة التثقيب والقطعمواد:قالبالصلب CR12MOV (= D2 الصلب، مع مليون مرة اللكم / القطع الحياة)، المعالجة الحرارية إلى درجة حرارة HRC58-62
2 الاسطواناتالثقبالنظام ،مجموعتحتاج أربعة قوالب اللكم 19x64 و 23x29 و 20x65 و 24 × 30
4) الجهاز الرئيسي
إطار الجسم المصنوع منH450 نوع الصلبعن طريق اللحام
بكرات تصنيعها منCR12.صلب، CNC.مخارط، مهاوي معالجة الحرارة قطر =Ф95.، الدقة تشكيله
محرك التروس حملة (بكرات العلوي والسفلي مع الطاقة)
هيكل نوع العمودالتصميم(الزهر النصب التذكاري القوس، سمك: 55mm)صندوق التروس القيادة، حول19 خطوةلتشكيل
المحرك الرئيسي =45KW،تكرارسرعة التحكم سرعة المحرك Redcucer:Kسلسلة
كتلة انزلاق:150 * 150mm
كل البرغي مسامير مع الصف 8.8(مصانع رخيصة تستخدم انخفاض درجة 4.8)لضمان الإصلاح هيكل الجهاز بإحكام وحياة طويلة خلال آلة الزمن الطويل تشغيل
حقيقية سرعة تشكيل12-16m / دقيقة
مع المياه الباردةجهاز(للحصول على أفضل المنتجات)
19 جير Boxs محرك، 38 نقل مهاوي (حتىوأسفل العمود)
نوع العمود الصورةtructureالتصميم(الحديد الزهر قوس تذكاري، سمك: 55MM)
5) قطع المشاركة الهيدروليكيةجهاز(مجموع الحاجة قوالب اثنين من كتر)
آخر لخفض، ووقف لالقطع، ثلاثةقطع نوع من قطع تصميم شفرة، لا المسح محرك هيدروليكي:37KW، مع جهاز الضرب شارك محطة هيدروليكية
قطع الضغط:0-25Mpa (250bar)قطعأداة المواد:Cr12MoV(= SKD11 مع ما لا يقل عن مليون مرة من حياة قطاعات)، المعالجة الحرارية لHRC58-62 درجة
يتم توفير الطاقة عن طريق قطعمحطة هيدروليكية المستقلة
النظام الهيدروليكيمع فلتر الزيت للنفطالترشيح لضمان تعميم النفط نظيفة و إطالة عمر النظام الهيدروليكي(انظر الصورة أدناه)
\
6) نظام التحكم PLC
مدخلات الإنتاجالبيانات(دفعة الإنتاج، وأجهزة الكمبيوتر، وطول، الخ.) على شاشة تعمل باللمس، ويمكن الانتهاء من إنتاجتلقائيا.
جنبا إلى جنب مع: العاكس، التشفير، الخ
قطع لطول التسامح≤ ± 1مم
السيطرة على الجهد24 فولت
7) حامل الخروج:غير مدعومة، واحدوحدة،معبكرات على ذلك لسهولة الحركة
8) المنتج النهائي